Sự khác biệt trong phong cách thiết kế và nhu cầu sử dụng khiến báo giá cửa kính cường lực mở 2 chiều mới nhất luôn được các chủ đầu tư, kiến trúc sư, nhà thầu và gia chủ quan tâm, tìm kiếm và so sánh trước khi đưa ra quyết định thi công. Đây là hạng mục không chỉ ảnh hưởng đến thẩm mỹ công trình mà còn liên quan trực tiếp đến độ bền, an toàn và chi phí đầu tư lâu dài
Để hiểu rõ hơn, phần tiếp theo sẽ cung cấp cho bạn báo giá chi tiết, gợi ý mẫu cửa phổ biến, lý do nên chọn Minh Gia Door và những lưu ý quan trọng khi lắp đặt. Đừng bỏ lỡ những thông tin quan trọng giúp công trình của bạn bền đẹp và hiệu quả lâu dài nhé!

Cửa kính cường lực mở 2 chiều giá rẻ, thi công nhanh chóng
Báo giá cửa kính cường lực mở 2 chiều chi tiết, trọn gói
| LOẠI CỬA | KHỔ KÍNH (m) | ĐƠN GIÁ (VNĐ/m2) |
| Kính cường lực trắng | ||
| Kính trắng 5mm cường lực | 2.13 x 3.05 | 490,000 – 520,000 |
| Kính trắng 6mm cường lực | 2.13 x 3.05 | 520,000 – 550,000 |
| Kính trắng 8mm cường lực | 2.13 x 3.05 | 550,000 – 600,000 |
| Kính trắng 8mm cường lực | 2.44 x 3.66 | 580,000 – 630,000 |
| Kính trắng 10mm cường lực | 2.13 x 3.05 | 600,000 – 650,000 |
| Kính trắng 10mm cường lực | 2.44 x 3.66 | 630,000 – 680,000 |
| Kính trắng 12mm cường lực | 2.13 x 3.05 | 700,000 – 750,000 |
| Kính trắng 12mm cường lực | 2.44 x 3.66 | 740,000 – 790,000 |
| Kính cường lực mờ | ||
| Kính mờ 5mm cường lực | 2.13 x 3.05 | 550,000 – 600,000 |
| Kính mờ 8mm cường lực | 2.13 x 3.05 | 610,000 – 660,000 |
| Kính mờ 10mm cường lực | 2.13 x 3.05 | 750,000 – 850,000 |
| Kính cường lực màu | ||
| Kính 5mm cường lực màu xanh lá/xanh dương/xám khói/trà | 2.13 x 3.05 | 900,000 – 1,000,000 |
| Kính 6mm cường lực màu xanh lá/xanh dương/xám khói/trà | 2.13 x 3.05 | 1,000,000 – 1,000,000 |
| Kính 8mm cường lực màu xanh lá/xanh dương/xám khói/trà | 2.13 x 3.05 | 1,150,000 – 1,250,000 |
| Kính 10mm cường lực màu xanh lá/xanh dương/xám khói/trà | 2.13 x 3.05 | 1,250,000 – 1,350,000 |
| Kính 12mm cường lực màu xanh lá/xanh dương/xám khói/trà | 2.13 x 3.05 | 1,350,000 – 1,450,000 |
| Kính dán an toàn 2 lớp | ||
| Kính 6.38mm | 1.83 x 2.44 | 550,000 – 600,000 |
| Kính 8.38mm | 1.83 x 2.44 | 660,000 – 710,000 |
| Kính 10.38mm | 2.13 x 3.05 | 710,000 – 760,000 |
| Kính hộp 2 lớp | ||
| Kính hộp 19mm (5mm cl + 9mm Argon + 5mm cl) | 2.13 x 3.05 | 1,120,000 – 1,210,000 |
| Kính hộp 22mm (6mm cl + 9mm Argon + 6mm cl) | 2.13 x 3.05 | 1,170,000 – 1,270,000 |
| Kính hộp Low-E | ||
| Kính hộp 22mm (5mm cl + 12mm Argon + 5mm cl) | 2.13 x 3.05 | 1,120,000 – 1,210,000 |
| Kính hộp 24mm (6mm cl + 12mm Argon + 6mm cl) | 2.13 x 3.05 | 1,170,000 – 1,270,000 |
| Kính thủy | ||
| Kính thủy 5mm (Gương dày 5mm) | 700,000 – 750,000 | |
Mức giá cửa kính cường lực mở 2 chiều chi tiết có thể thay đổi dựa trên kích thước, hệ cửa, kiểu dáng, màu sắc, phụ kiện đi kèm cũng như số lượng đặt hàng. Nếu có nhu cầu, bạn vui lòng liên hệ với chúng tôi qua hotline/Zalo 0397 336 393 để đội ngũ nhân viên xuống tận nơi đo đạc và báo giá cửa kính cường lực chính xác cho từng công trình cụ thể.

Cửa kính cường lực 2 chiều ngày càng được các nhà thầu, đơn vị thi công, gia chủ ưa chuộng
Ưu, nhược điểm của cửa kính cường lực mở 2 chiều là gì?
Ưu điểm
- Tính thẩm mỹ cao: Không chỉ giúp lấy sáng tối đa, cửa kính mở 2 chiều còn tạo cảm giác không gian rộng rãi hơn hẳn so với cửa gỗ hay nhôm truyền thống. Đây là lý do loại cửa này được nhiều gia đình, showroom và văn phòng lựa chọn.
- An toàn và bền bỉ: Cửa kính cường lực có độ bền gấp 4 – 5 lần kính thường, chịu lực tốt và khi vỡ tạo thành vụn nhỏ không sắc nhọn, giảm thiểu nguy cơ gây thương tích cho người dùng. Cửa mở 2 chiều còn giúp đóng mở dễ dàng, vận hành êm ái, mang lại sự tiện lợi và tuổi thọ cao cho sản phẩm.
- Tối ưu không gian: Cơ chế mở ra cả hai phía với hệ thống bản lề có thể mở rộng 180 độ, giúp đi lại thoải mái , giảm tình trạng “nghẽn cửa” ở những nơi có nhiều người ra vào như quán cà phê, cửa hàng, tòa nhà văn phòng…
- Dễ dàng vệ sinh, bảo dưỡng: Khác với cửa gỗ dễ cong vênh, cửa kính cường lực chỉ cần lau chùi bằng khăn ẩm, hầu như không tốn nhiều chi phí bảo dưỡng hàng năm.
Nhược điểm cửa kính cường lực mở 2 chiều
- Chi phí cao: Giá cửa kính mở 2 chiều thường cao hơn 20 – 30% so với cửa nhôm hoặc gỗ cùng kích thước. Đây là điều khách hàng cần cân nhắc nếu tài chính hạn chế.
- Yêu cầu kỹ thuật lắp đặt nghiêm ngặt: Cửa cần được thi công, lắp đặt bởi đơn vị có tay nghề để đảm bảo an toàn bởi kính cường lực đặc biệt ở các góc cạnh dễ bị vỡ nếu không cẩn thận hoặc lắp đặt sai kỹ thuật.
- Bảo dưỡng định kỳ: Bản lề sàn, gioăng, kẹp kính nếu không được kiểm tra 6 – 12 tháng/lần có thể gây xệ cánh, đóng mở nặng tay.
- Khả năng bị vỡ do tác động cực mạnh hoặc lỗi kính: Mặc dù bền, nhưng kính cường lực vẫn có thể bị nổ hoặc vỡ nếu có lẫn tạp chất hoặc chịu tác động lớn, gây mất an toàn nếu không được xử lý kịp thời.

Những ưu, nhược điểm của cửa kính mở 2 chiều
Các ứng dụng phổ biến của cửa kính cường lực mở quay 2 chiều
Cửa kính cường lực mở 2 chiều có tính linh hoạt cao, phù hợp với nhiều không gian sử dụng trong các công trình như nhà phố, biệt thự, văn phòng công ty, showroom cửa hàng, nhà hàng và khách sạn… Tùy theo nhu cầu, bạn có thể cân nhắc lắp đặt tại:
- Cửa chính ra vào: Đây là vị trí thường xuyên có người qua lại. Cửa kính cường lực 2 chiều giúp đóng mở thuận tiện theo cả hai hướng, mang lại sự thoải mái khi di chuyển, đồng thời tăng độ sang trọng và hiện đại cho mặt tiền công trình.
- Sảnh tiếp đón & hành lang: Ở những khu vực kết nối nhiều không gian, loại cửa này vừa đảm bảo an toàn khi có mật độ di chuyển cao, vừa giúp không gian thông thoáng, dễ quan sát và điều hướng người đi lại.
- Ban công, lối ra sân vườn: Với khả năng lấy sáng và mở rộng tầm nhìn, cửa kính giúp kết nối hài hòa giữa không gian trong nhà và ngoài trời. Bản lề thủy lực giữ cửa vận hành êm ái, hạn chế va đập, mang lại sự tiện lợi trong sinh hoạt.
- Phòng họp, không gian làm việc chung: Giữ cho phòng họp cách âm tương đối, đảm bảo tính riêng tư nhưng vẫn mang đến sự thoáng đãng nhờ khả năng lấy sáng tự nhiên.
- Khu vực thương mại, dịch vụ (nhà hàng, khách sạn, showroom): Đây là những nơi đòi hỏi thẩm mỹ cao và tần suất sử dụng lớn, đáp ứng tốt cả hai yếu tố: vận hành bền bỉ, an toàn và giúp không gian trở nên cuốn hút, chuyên nghiệp hơn trong mắt khách hàng.

Cửa kính cường lực mở quay 2 chiều phù hợp lắp đặt ở mặt tiền các cửa hàng
Những mẫu cửa kính cường lực 2 chiều nào phổ biến nhất hiện nay?
Cửa kính cường lực mở 2 chiều được lựa chọn nhiều nhờ tính linh hoạt, sang trọng và độ bền cao. Một số mẫu tiêu biểu có thể kể đến như:
- Cửa kính cường lực bản lề sàn: Phổ biến nhất, đóng mở hai chiều nhẹ nhàng, phù hợp hầu hết công trình.
- Cửa kính cường lực khung inox/nhôm: Tăng thêm độ vững chắc, phù hợp không gian cần sự chắc chắn, an toàn.
- Cửa kính 2 chiều tay nắm dài: Tạo điểm nhấn hiện đại, dễ sử dụng và nâng cao tính thẩm mỹ.
- Cửa kính kết hợp vách kính cố định: Giúp không gian thoáng đãng, lấy sáng tối đa nhưng vẫn đảm bảo phân tách khu vực rõ ràng.
Những mẫu này không chỉ được đánh giá cao về thẩm mỹ mà còn tối ưu công năng, đáp ứng đa dạng nhu cầu từ gia đình đến doanh nghiệp.

Cửa kính cường lực bản lề sàn mở 2 chiều

Cửa kính cường lực kết hợp vách kính cố định

Mẫu cửa kính cường lực 2 chiều tay nắm dài

Cửa kính cường lực mở 2 chiều dạng tay nắm dài thường được thấy nhiều trong văn phòng

Cửa kính 2 chiều được cách tân tay nắm hiện đại, mới lạ

Loại cửa này tiện lợi cho lối ra vào đông người như toà nhà, trung tâm thương mại

Mẫu cửa kính được ứng dụng cho quán cà phê

Mẫu cửa kính cường lực chất lượng cao

Cửa kính mở 2 chiều mang lại sự thoáng sáng tự nhiên

Cửa phù hợp với không gian nhỏ, tiết kiệm diện tích khi mở cửa
Xem thêm: Báo giá cửa kính cường lực lùa 2026 – Thi công trọn gói giá tốt
Cần lưu ý những gì khi lắp đặt cửa kính cường lực 2 chiều?
Để cửa kính cường lực mở 2 chiều vận hành an toàn, bền đẹp và giữ được tính thẩm mỹ lâu dài, bạn cần đặc biệt chú ý đến những điểm sau:
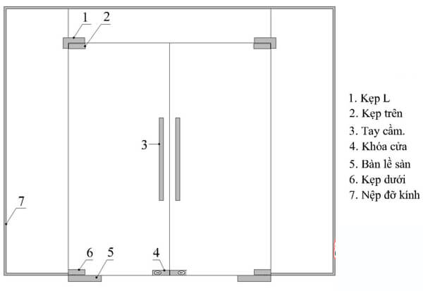
- Khảo sát kỹ nơi lắp đặt trước khi thi công: Khảo sát và đo đạc chính xác trước khi lắp: Mặt bằng cần được chuẩn bị sạch sẽ, bằng phẳng, không cong vênh. Việc đo đạc kỹ càng giúp cửa được lắp đúng kích thước, cân đối và hạn chế sai sót trong quá trình sử dụng.
- Lựa chọn phụ kiện chính hãng: Bản lề sàn, kẹp kính, gioăng cao su… nếu dùng hàng kém chất lượng sẽ nhanh hỏng, cửa khó vận hành. Tại Minh Gia Door, tất cả phụ kiện đều 100% chính hãng, đảm bảo tính đồng bộ và chất lượng.
- Lắp đặt đúng kỹ thuật: Đặc biệt là bản lề sàn, bản lề thủy lực phải được lắp chính xác, siết chặt các ốc vít, kiểm tra độ vuông góc, thẳng đứng của cửa để đảm bảo cửa không bị lệch, xệ hay cong vênh khi sử dụng.
- Kiểm tra, chỉnh sửa sau lắp đặt và bảo dưỡng định kỳ: Cần kiểm tra độ bền kính, điều chỉnh lại khi cửa bị vênh nhẹ, vệ sinh sạch sẽ để tránh han gỉ, kẹt gioăng. Tuyệt đối không tháo van dầu của bản lề thủy lực để tránh rò rỉ dầu.
- An toàn trong quá trình lắp đặt và sử dụng: Tránh để trẻ em và người lớn tuổi ở gần khu vực thi công để phòng tránh tai nạn.

Với cửa kính cường lực, các bản lề cần được lắp chính xác
Vì sao nên chọn Minh Gia Door thi công cửa kính cường lực mở 2 chiều?
Hiện có nhiều đơn vị cung cấp cửa kính cường lực, nhưng không phải nơi nào cũng đảm bảo đồng đều từ chất lượng vật liệu, tay nghề đến dịch vụ sau lắp đặt. Điểm khác biệt khiến Minh Gia Door luôn được khách hàng tin tưởng chính là:
- Kính và phụ kiện rõ nguồn gốc: Chúng tôi chỉ dùng kính cường lực đạt chuẩn an toàn, khung inox chống gỉ và phụ kiện đồng bộ từ các thương hiệu uy tín. Nhờ vậy, cửa không chỉ đẹp mà còn bền chắc, chịu lực và an toàn khi sử dụng lâu dài.
- Lắp đặt gọn gàng, đúng kỹ thuật: Đội ngũ thợ thi công nhiều kinh nghiệm giúp công trình hoàn thiện nhanh chóng, chuẩn kích thước, không bị xệ cánh hay hở khung. Điều này vừa đảm bảo thẩm mỹ, vừa tiết kiệm chi phí sửa chữa về sau.
- Giải pháp phù hợp từng công trình: Tùy đặc thù nhà ở, cửa hàng hay văn phòng, chúng tôi đưa ra thiết kế phù hợp nhất để tối ưu không gian, ánh sáng và công năng sử dụng. Khách hàng không phải lo chọn sai mẫu hoặc phát sinh ngoài mong muốn.
- Bảo hành phụ kiện 1 – 2 năm: Minh Gia Door không bảo hành kính nhưng cam kết bảo hành phụ kiện theo đúng hạng mục. Sau thời gian bảo hành, khách hàng vẫn được hỗ trợ nhanh chóng với chi phí hợp lý – giúp yên tâm trong suốt quá trình sử dụng.
- Chi phí minh bạch, không phát sinh: Báo giá gửi đến khách hàng luôn chi tiết, đầy đủ, rõ ràng ngay từ đầu, khách hàng không lo bị “đội giá” khi thi công.

Chúng tôi luôn thiết kế bản vẽ chi tiết và thống nhất với khách hàng trước khi thi công.
Một số dự án tiêu biểu được thi công bởi Minh Gia Door
Trong nhiều năm qua, chúng tôi đã thi công hàng trăm hạng mục cửa kính cường lực mở 2 chiều cho nhà phố, biệt thự, showroom, văn phòng và trung tâm thương mại. Mỗi công trình thi công cửa kính cường lực đều được khách hàng đánh giá cao nhờ sự tinh tế trong thiết kế, độ bền chắc chắn và tính thẩm mỹ lâu dài.

Hoàn thiện dự án cửa kính cường lực mở 2 chiều cho Tòa nhà 104 Cao Thắng, Quận 3

Lắp đặt cửa kính cường lực mở 2 chiều cho KDC Thăng Long Hiệp Phước, Đồng Nai

Dự án cửa kính cường lực 2 chiều khung nhôm cho Toà nhà 128 Tên Lửa, Bình Tân

Nhà anh Hoàng tại KDC Mizuki Park, Bình Chánh chọn cửa kính mở 2 chiều cho phòng tắm
Xem thêm các dự án thi công cửa kính cường lực của Minh Gia Door tại đây.
Quy trình lắp đặt cửa kính cường lực mở 2 chiều tại Minh Gia Door
- Bước 1 – Tiếp nhận yêu cầu & tư vấn: Đội ngũ chuyên viên lắng nghe nhu cầu, định hướng phong cách thiết kế và khảo sát sơ bộ nhằm đưa ra giải pháp phù hợp nhất.
- Bước 2 – Khảo sát công trình: Nhân viên tiến hành đo đạc chính xác, đánh giá hiện trạng và điều kiện kỹ thuật của công trình.
- Bước 3 – Báo giá minh bạch: Minh Gia Door đề xuất loại kính, phụ kiện, phương án thi công kèm báo giá rõ ràng, không phát sinh.
- Bước 4 – Ký kết hợp đồng: Thỏa thuận cụ thể về tiến độ, chi phí và cam kết chất lượng, đảm bảo quyền lợi tuyệt đối cho khách hàng.
- Bước 5 – Thi công lắp đặt: Sản phẩm được vận chuyển an toàn, lắp đặt đúng kỹ thuật, đồng thời chú trọng tính thẩm mỹ cho không gian tổng thể.
- Bước 6 – Nghiệm thu & bàn giao: Công trình được kiểm tra toàn diện, vệ sinh sạch sẽ trước khi bàn giao, kèm hướng dẫn sử dụng và bảo quản chi tiết.
- Bước 7 – Hỗ trợ sau thi công: Minh Gia Door duy trì chính sách bảo hành phụ kiện, đồng thời luôn sẵn sàng hỗ trợ khi khách hàng cần điều chỉnh hoặc thay thế phụ kiện.
Câu hỏi thường gặp
1. Báo giá trọn gói có bao gồm khung, phụ kiện và vận chuyển không?
Tại Minh Gia Door, báo giá cửa kính cường lực mở 2 chiều được tính trọn gói, đã bao gồm kính cường lực, khung inox/nhôm, phụ kiện đi kèm (bản lề, tay nắm, kẹp kính…) và chi phí vận chuyển trong khu vực nội thành. Với các công trình ở tỉnh xa, chúng tôi sẽ báo rõ chi phí phát sinh nếu có trước khi ký hợp đồng để khách hàng yên tâm.
2. Với diện tích lớn, có nên dùng cửa kính cường lực mở 2 chiều hay loại khác?
Cửa kính mở 2 chiều thường được khuyên dùng cho những không gian vừa và nhỏ, nơi mật độ đi lại ở mức trung bình, ví dụ như cửa chính nhà ở, văn phòng, cửa hàng… Ưu điểm là dễ sử dụng, gọn gàng và tính thẩm mỹ cao.
Tuy nhiên, với diện tích lớn hoặc khu vực có lượng người di chuyển nhiều như sảnh tòa nhà, trung tâm thương mại, showroom…, việc sử dụng cửa mở 2 chiều có thể gây bất tiện và nhanh hao mòn phụ kiện. Lúc này, bạn nên cân nhắc các giải pháp khác như cửa kính lùa, cửa tự động hoặc cửa thủy lực (kính gương) kết hợp với vách cố định, giúp di chuyển thuận tiện hơn, giảm áp lực cho phụ kiện và tăng độ bền cho cả hệ thống. Minh Gia Door sẽ khảo sát thực tế và tư vấn loại cửa tối ưu cho từng công trình.
3. Minh Gia Door bảo hành cửa kính cường lực mở 2 chiều như thế nào?
Chúng tôi bảo hành phụ kiện của cửa kính trong thời gian từ 1 – 2 năm bao gồm bản lề, tay nắm, kẹp kính và khung inox/nhôm. Riêng phần kính cường lực sẽ không áp dụng bảo hành, nhưng chúng tôi luôn hỗ trợ kiểm tra và tư vấn khi có vấn đề phát sinh.
Với những thông tin trên, chắc hẳn bạn đã nắm được mới nhất hiện nay và hiểu rõ hơn về ưu điểm, các loại cửa phổ biến cũng như những lưu ý quan trọng khi lắp đặt. Đây là lựa chọn phù hợp cho nhiều công trình vì vừa đảm bảo tính thẩm mỹ, vừa bền chắc dài lâu. Nếu bạn cần báo giá cụ thể cho diện tích thực tế hoặc muốn được tư vấn loại cửa tối ưu, hãy liên hệ Minh Gia Door qua hotline/Zalo 0397 336 393, chúng tôi luôn sẵn sàng hỗ trợ nhanh chóng và tận tâm nhất!
>> Tham khảo thêm các bài viết liên quan:
- Báo giá cửa kính cường lực 2 cánh chính hãng, mới nhất 2025
- Tổng hợp các loại cửa kính cường lực đẹp, thời thượng 2025

