Khi nhắc đến phụ kiện cửa kính cường lực, cửa lùa chuẩn chất lượng, điều mà nhiều người quan tâm nhất không phải giá rẻ mà là độ bền, khả năng chịu lực và sự tương thích với từng loại cửa. Một phụ kiện không đạt chuẩn có thể khiến cửa hoạt động kém ổn định, gây tiếng ồn hoặc thậm chí mất an toàn cho các thành viên trong gia đình. Vì vậy, việc chọn đúng loại và đúng nơi mua là điều không thể xem nhẹ.
Trong bài viết sau, Minh Gia Door sẽ giúp bạn nắm rõ các nhóm phụ kiện cửa kính cường lực quan trọng theo từng dòng cửa, từ cửa mở quay đến phụ kiện cửa lùa kính cường lực, cập nhật bảng giá mới chi tiết và cung cấp những tiêu chí cần có để chọn đúng sản phẩm chính hãng. Nếu bạn đang tìm giải pháp tối ưu và an toàn, hãy cùng chúng tôi khám phá từng nội dung ngay sau đây.

Báo giá phụ kiện cửa kính cường lực, cửa lùa mới nhất hiện nay
Các loại phụ kiện nào không thể thiếu cho cửa kính cường lực?
Để cửa vận hành ổn định và an toàn, việc chọn đúng bộ phụ kiện cửa kính cường lực tương thích với từng quy cách mở là bắt buộc. Dưới đây là danh sách các linh kiện “bất ly thân” cho 2 dòng cửa phổ biến tại Minh Gia Door:
- Đối với cửa kính mở quay (Cửa thủy lực): Đây là hệ cửa thông dụng, yêu cầu bộ phụ kiện chịu lực cao gồm:
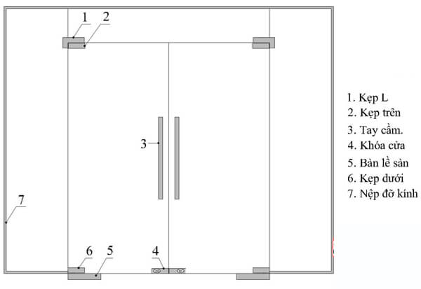
- Bản lề sàn: Bộ phận quan trọng nhất giúp chịu lực và để cửa tự động khép lại êm ái.
- Bộ kẹp kính (Kẹp trên – Dưới – Góc L): Giúp liên kết, cố định các tấm kính với nhau và với trục bản lề.
- Khóa sàn: Chốt chặt cánh cửa xuống nền nhà, đảm bảo an ninh chống cạy phá.
- Tay nắm: Hỗ trợ lực đẩy/kéo cửa và tạo điểm nhấn thẩm mỹ sang trọng.
- Đối với cửa kính lùa treo (Cửa trượt): Giải pháp tiết kiệm diện tích với cơ chế trượt ngang, sử dụng trọn bộ phụ kiện cửa lùa kính cường lực chuyên dụng bao gồm:
- Hệ ray treo & bánh xe: Ray (nhôm/inox) kết hợp cụm bánh xe giúp cửa trượt ngang nhẹ nhàng.
- Dẫn hướng: Lắp dưới sàn để giữ chân cửa luôn thẳng hàng, chống rung lắc khi trượt.
- Giảm chấn & chặn bánh xe: Ngăn cửa va đập mạnh vào tường hoặc tuột khỏi ray.
- Tay nắm âm: Thiết kế lõm vào mặt kính giúp cửa lùa hết biên độ mà không bị vướng.

Báo giá phụ kiện cửa kính cường lực, cửa lùa mới nhất hiện nay

Hệ ray treo & bánh xe cửa lùa
Bảng giá phụ kiện cửa kính cường lực mới nhất 2025 tại Minh Gia Door
Giá phụ kiện có thể thay đổi tùy theo thương hiệu, chất liệu và nguồn gốc sản xuất. Minh Gia Door cam kết cung cấp sản phẩm chính hãng 100% với mức giá minh bạch, hợp lý và phù hợp với nhu cầu thực tế của từng công trình. Dưới đây là bảng giá phụ kiện cửa kính thuỷ lực chi tiết của chúng tôi, mời bạn tham khảo:
Phụ kiện cửa kính cường lực mở quay
| PHỤ KIỆN |
ĐƠN GIÁ (VNĐ) |
| Bản lề sàn cửa kính thủy lực |
1,080,000 VNĐ/bộ |
| Khóa sàn |
349,000 VNĐ/bộ |
| Kẹp kính trên/dưới |
250,000 VNĐ/chiếc |
| Kẹp L cho vách kính |
250,000 VNĐ/chiếc |
| Kẹp ly |
300,000 VNĐ/chiếc |
| Tay nắm inox |
350,000 VNĐ/chiếc |
| Khoá vân tay cho cửa kính cường lực Laffer G08 |
5,450,000 VNĐ/bộ |
| Khóa cửa vân tay 5 in 1 LAFFER XF18 |
4,990,000 VNĐ/bộ |
| Khóa cửa vân tay 5 in 1 LAFFER XF19 |
4,990,000 VNĐ/bộ |
| Khóa cửa vân tay 5 in 1 LAFFER R1 |
6,990,000 VNĐ/bộ |
Phụ kiện cửa lùa kính cường lực
| PHỤ KIỆN |
ĐƠN GIÁ (VNĐ) |
|
Phụ kiện cửa lùa kính cường lực tay treo inox
|
| Thanh treo inox bánh xe đơn |
2,000,000 VNĐ/bộ |
| Thanh treo inox bánh xe đôi |
2,500,000 VNĐ/bộ |
| Khóa bán nguyệt |
350,000 VNĐ/chiếc |
| Tay nắm âm |
150,000 VNĐ/chiếc |
|
Phụ kiện cửa lùa kính cường lực khung nhôm
|
| Kẹp bánh xe |
1,350,000 VNĐ/bộ |
| Tay nắm âm |
150,000 VNĐ/chiếc |
| Khóa bán nguyệt |
350,000 VNĐ/chiếc |
Lưu ý: Bảng giá phụ kiện cửa kính cường lực trên chỉ mang tính tham khảo, giá thực tế có thể thay đổi tùy thuộc vào nhãn hiệu, số lượng đơn hàng. Đặc biệt, Minh Gia Door luôn có chính sách ưu đãi hấp dẫn dành cho đơn hàng sỉ và dự án. Để nhận báo giá chính xác, vui lòng liên hệ ngay với chúng tôi qua hotline/Zalo 0397 336 393.

Khoá vân tay cửa kính cường lực cao cấp
Cần lưu ý những gì khi chọn mua phụ kiện cửa kính cường lực?
Phụ kiện chính là “xương sống” quyết định độ bền của cửa kính cường lực. Một bộ phụ kiện chuẩn giúp cửa êm ái suốt 20 năm, ngược lại, chọn sai sẽ khiến bạn tốn tiền triệu sửa chữa chỉ sau vài tháng. Hãy nằm lòng 3 nguyên tắc sau:
- Tải trọng phải đúng với cân nặng cửa: Đây là lỗi sai dễ gặp nhất. Đừng bắt một chiếc bản lề nhỏ phải “gánh” cánh cửa quá to nặng. Việc quá tải sẽ khiến bản lề nhanh chóng bị gãy trục, chảy dầu và xệ cánh. Hãy để Minh Gia Door tính toán tải trọng chuẩn xác giúp bạn.
- Mua đồng bộ, không lắp ghép lộn xộn: Tuyệt đối không dùng kiểu “râu ông nọ cắm cằm bà kia”. Phải dùng trọn bộ cùng một hãng để các khớp nối ăn ý 100%, giúp cửa vận hành êm ái và không phát ra tiếng kêu khó chịu.
- Biết cách phân biệt hàng thật – giả: Hàng thật các hãng lớn luôn có tem SMS bảo hành điện tử, chi tiết sắc nét và ốc vít chắc chắn, trong khi hàng giả thường giá rẻ bất ngờ, chữ in mờ nhạt và không có giấy tờ bảo hành rõ ràng.

Một số lưu ý khi chọn mua phụ kiện cửa kính cường lực
Đơn vị nào cung cấp phụ kiện cửa kính cường lực uy tín nhất hiện nay?
Không chỉ là lựa chọn hàng đầu tại TPHCM, Minh Gia Door còn là đối tác phân phối phụ kiện tin cậy cho các công trình trên toàn quốc. Chúng tôi chinh phục các nhà thầu, đơn vị thi công và gia chủ bằng sự minh bạch tuyệt đối về nguồn gốc sản phẩm. Thay vì những lời quảng cáo hoa mỹ, chúng tôi cam kết:
- Hàng chính hãng 100%: Phân phối phụ kiện cửa kính cường lực trực tiếp từ các thương hiệu lớn kèm đầy đủ giấy tờ xuất xưởng.
- Báo giá minh bạch, không chi phí ẩn: Cung cấp bảng giá chi tiết từng hạng mục ngay từ đầu. Cam kết mức giá cạnh tranh, hợp lý và bạn sẽ không phải lo lắng về việc bị “đội giá” hay thu thêm bất kỳ khoản phụ phí nào sau khi chốt.
- Tư vấn có tâm: Chúng tôi tư vấn đúng loại phụ kiện phù hợp với tải trọng cửa để đảm bảo độ bền, không “vẽ” thêm các loại đắt tiền không cần thiết gây lãng phí.
- Bảo hành tận tâm: Minh Gia Door áp dụng chính sách bảo hành từ 1 – 2 năm tùy loại phụ kiện, đảm bảo hỗ trợ nhanh chóng và giải quyết mọi sự cố, giúp bạn hoàn toàn yên tâm khi sử dụng.

Minh Gia Door lắp đặt khóa cửa vân tay thông minh cho nhà dân

Cung cấp tay nắm cửa vân tay cho nhà phố tại TP.HCM
Chọn nhầm đơn vị cung cấp hàng kém chất lượng sẽ gây ra rủi ro gì?
Việc ham rẻ, chọn mua phụ kiện cửa kính cường lực trôi nổi, không rõ nguồn gốc tiềm ẩn nhiều hệ lụy khôn lường. Dưới đây là 4 rủi ro thực tế bạn phải đối mặt:
- Nguy cơ mất an toàn: Phụ kiện dỏm chịu lực kém, rất dễ gãy chốt hoặc tuột ốc. Cánh cửa nặng hàng chục kg có thể đổ sập bất ngờ, gây nguy hiểm trực tiếp cho người sử dụng.
- Vận hành nặng nề, kẹt rít: Các chi tiết gia công lỗi, không đồng bộ khiến việc đóng mở trở nên nặng nhọc. Cửa thường xuyên bị kẹt và phát ra tiếng kêu “cót két” chói tai rất khó chịu.
- Gỉ sét, mất thẩm mỹ: Hàng nhái thường dùng vật liệu pha tạp rẻ tiền. Chỉ sau vài tháng, bề mặt sẽ bị ố vàng, gỉ sét sần sùi, làm xấu đi vẻ sang trọng của bộ cửa.
- Tốn kém gấp đôi: “Rẻ hóa đắt” – Tuổi thọ hàng giả rất ngắn. Bạn sẽ sớm phải tốn thêm khoản tiền lớn để gọi thợ sửa chữa hoặc thay mới toàn bộ chỉ sau thời gian ngắn sử dụng.

Bản lề sàn nhanh gỉ do mua từ đơn vị cung cấp hàng giá rẻ, kém chất lượng
Câu hỏi thường gặp
Chính sách bảo hành phụ kiện cửa kính cường lực tại Minh Gia Door như thế nào?
Chúng tôi áp dụng chính sách bảo hành từ 1 – 2 năm tuỳ theo loại phụ kiện cửa lùa kính cường lực hoặc mở quay. Trong suốt thời gian này, Minh Gia Door cam kết hỗ trợ nhanh chóng và giải quyết triệt để mọi sự cố kỹ thuật, giúp bạn hoàn toàn yên tâm khi sử dụng bộ cửa của mình.
Những nhãn hiệu phụ kiện nào được lựa chọn nhiều nhất hiện nay?
Dựa trên kinh nghiệm thi công thực tế, 3 thương hiệu phụ kiện cửa kính cường lực đang được ưa chuộng nhất gồm:
- VVP (Thái Lan): “Vua” phân khúc phổ thông, giá thành hợp lý, độ bền ổn định, phù hợp với đại đa số gia đình và cửa hàng.
- Adler (Đức): Phân khúc cận cao cấp, nổi bật với thiết kế thẩm mỹ, khả năng chịu tải tốt và độ bền vượt trội.
- Hafele (Đức): Dòng cao cấp sang trọng, tiêu chuẩn Châu Âu, vận hành cực kỳ êm ái và bền bỉ.
Phụ kiện cửa kính cường lực có bị gỉ sét không?
Điều này phụ thuộc vào chất liệu bạn lựa chọn.
- Nếu dùng Inox 304: Đây là chất liệu chuẩn cho phụ kiện cửa kính cường lực chất lượng cao, có khả năng chống gỉ sét tuyệt vời ngay cả trong môi trường ẩm ướt.
- Nếu dùng Inox 201 hoặc hàng mạ kém chất lượng: Sẽ dễ bị xỉn màu, ố vàng hoặc gỉ sét sau một thời gian ngắn tiếp xúc với độ ẩm và bụi bẩn.
Lời khuyên: Hãy vệ sinh định kỳ bằng khăn mềm và nước rửa kính để phụ kiện luôn sáng bóng như mới.
Một bộ bản lề sàn dùng được bao lâu thì phải thay?
Tuổi thọ trung bình của một bộ bản lề sàn chính hãng thường dao động từ 5 – 10 năm, tùy thuộc vào tần suất đóng mở cửa hàng ngày. Tuy nhiên, nếu bạn thấy bản lề có dấu hiệu chảy dầu đen ra sàn, đóng mở quá nhanh không hãm được lực hoặc phát ra tiếng kêu lớn, đó là lúc cần thay thế mới để đảm bảo an toàn cho bộ cửa.
Một bộ cửa đẹp không thể thiếu hệ thống phụ kiện cửa kính cường lực, cửa lùa chính hãng và bền bỉ. Việc lựa chọn đúng bản lề, tay nắm hay kẹp kính phù hợp không chỉ giúp cửa vận hành êm ái mà còn đảm bảo toàn bộ hệ cửa đạt chuẩn an toàn. Minh Gia Door tự hào mang đến những sản phẩm đạt chuẩn và được lựa chọn kỹ lưỡng cho từng công trình của bạn. Liên hệ ngay qua hotline/Zalo 0397 336 393 để được tư vấn và nhận báo giá chi tiết nhé!